SML.
DOM PASYWNY
info.
  • miejsce. Gliwice

  • rok projektu. 2019-20

  • realizacja. 2021

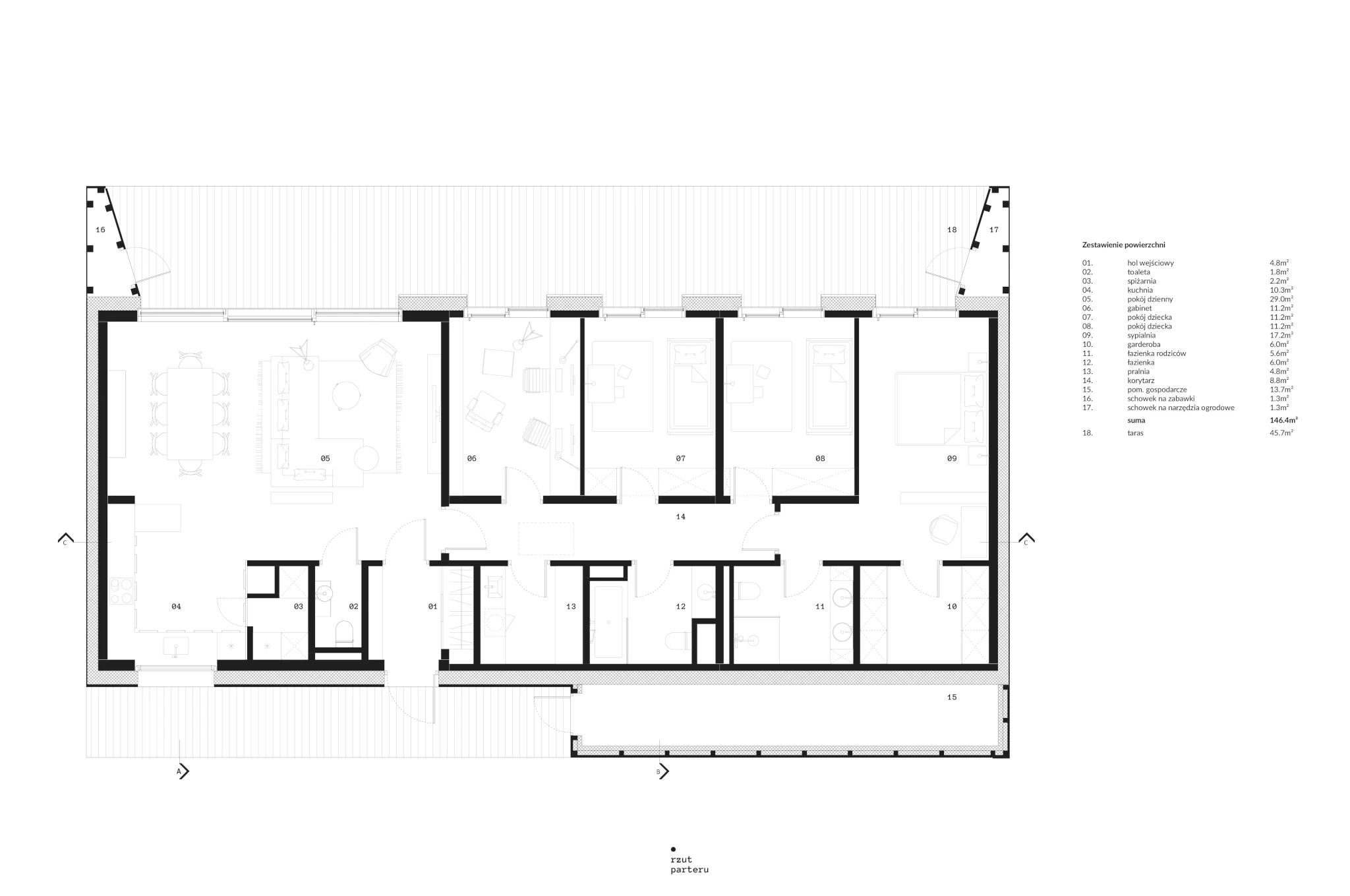
  • powierzchnia zabudowy. 189m2

  • powierzchnia użytkowa. 146m2

  • powierzchnia tarasów. 43m2

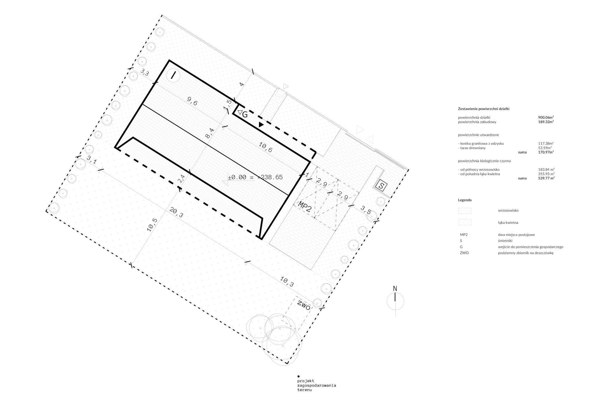
  • powierzchnia działki. 0.1ha

  • roczne zapotrzebowanie na energię. 41kWh/m2rok



zespół projektowy.
  • architektura.


    blsk

    .

    studio

    mateusz

    skalski

    ,

    paulina

    skalska

    ,

    sonia

    kwiatkowska

    ,

    agata

    pierożyńska

  • konstrukcja.


    figura

    team

  • branża sanitarna.


    grzegorz

    krukowski

    ,

    piotr

    simka

  • branża elektryczna.


    piotr

    świerk

  • zdjęcia.


    maciej

    spiess



tagi.
  • #dom energooszczędny

    #budownictwo naturalne

    #keramzytobeton

    #dom prefabrykowany

    #dom pasywny

    #taras

Wstęp.
Od pierwszych rozmów z klientami dom sml. miał cechować pragmatyzm i troska o środowisko naturalne. Rozsądek w doborze materiałów, utrzymanie w ryzach programu funkcjonalnego, strefowanie pomieszczeń, zwarta bryła oraz indywidualne rozwiązania formalne i technologiczne miały spełnić właśnie te pierwotne założenia.

Bryła.
Dzięki utrzymaniu konsekwencji w układzie funkcjonalnym oraz racjonalnym decyzjom formalnym, udało się ograniczyć zapotrzebowanie na całkowitą energię użytkową domu do 40,79 kWh/m2rok. Od strony północnej domu [od strony drogi dojazdowej] zlokalizowane zostały wszystkie pomieszczenia mokre, garderoba, pomieszczenie gospodarcze oraz wiatrołap z wejściem głównym do budynku. Po stronie południowej znalazły się pomieszczenia przeznaczone na dłuższy pobyt ludzi: salon, pokoje dzieci, sypialnia oraz gabinet. Ze względu na potrzebę utrzymania dobrych parametrów izolacyjnych przegród, po stronie północnej znajduje się tylko jedno okno w kuchni. Pomieszczenia dzienne, po stronie południowej posiadają duże, tarasowe drzwi przesuwne pozwalające z każdego pokoju wyjść na wspólny taras. Budynek został zlokalizowany w otoczeniu pól, a od południowej strony, w dalszej perspektywie, sąsiaduje z lasem. Chcąc podziwiać piękny krajobraz za oknem staraliśmy się pogodzić wprowadzenie dużych przeszkleń od strony południowej z nadrzędnym założeniem domu energooszczędnego/pasywnego. W tym celu zastosowaliśmy głęboki trakt zadaszonego tarasu, który ma chronić dom przed nadmiernym przegrzewaniem się w porze letnich upałów. Jednocześnie duże przeszklenia pozwalają na dogrzanie pomieszczeń energią słoneczną w okresie zimowym, kiedy słońce znajduje się relatywnie nisko nad horyzontem i promienie słoneczne wpadają przez przeszklenia bezpośrednio do wnętrza domu. Postanowiliśmy również domknąć ściankami krótsze boki tarasów tak, aby nie wyziębiać przeszklonej, południowej fasady. W domykających ściankach udało się zlokalizować małe komórki gospodarcze, przeznaczone na meble ogrodowe, narzędzia ogrodnicze i zabawki dzieci. Dzięki wykorzystaniu technologii prefabrykowanych wiązarów dachowych udało się stworzyć głębokie zadaszenia zarówno od strony południowej [2.5m], jak również od strony północnej [1.5m], bez konieczności stosowania dodatkowych elementów podpierających. Dzięki zadaszeniu od północy mogliśmy zrezygnować z budynku gospodarczego, pierwotnie planowanego przez Inwestorów jako niezależny budynek w ogrodzie. Zredukowaliśmy go do pomieszczenia gospodarczego schowanego pod zadaszeniem, rozciągniętego wzdłuż frontowej fasady. Dzięki temu uwolniliśmy ogród od zbędnego budynku zakłócającego widok na las i pola. Jednocześnie dzięki zastosowaniu rewersyjnej pompy ciepła oraz systemu rekuperacji ciepłe, ale zużyte powietrze, przepływając na zewnątrz przez to pomieszczenie ogrzewa je i zapewnia dodatkowy bufor termiczny od strony północnej.

materiały.

Przy doborze materiałów budowlanych staraliśmy się postawić akcenty we właściwych miejscach. Skoncetrowaliśmy się na wysokiej jakości, zdrowych materiałach konstrukcyjnych i budowlanych, do minimum redukując elementy zbędne i materiały wykończeniowe. Przy budowie domu zastosowano głównie technologię prefabrykowaną. Ściany nośne zewnętrzne i wewnętrzne wykonane są z prefabrykatów keramzytobetonowych. Więźba dachowa została wykonana z prefabrykowanych, drewnianych wiązarów dachowych. Jako dodatkową warstwę ocieplenia posadzki zastosowano recyclingowy poliuretan płynny, którego głównym elementem składowym są odpady styropianu. W celu poprawienia wydajności ogrzewania podłogowego, jako materiał wykończeniowy, zastosowana została posadzka anhydrytowa, która charakteryzuje się wysokim współczynnikiem przewodzenia ciepła. do izolacji termicznej dachu i poddasza wykorzystano celulozę pozyskaną z przemiału makulatury. ten sam materiał wykorzystano jako izolację akustyczną w ściankach działowych. Na elewacjach zastosowano dwa materiały. Elewacje długie: północna i południowa pokryte są deskami z modrzewia syberyjskiego w kolorze naturalnym oraz deskami sosnowymi malowanymi na kolor czarny. Ściany krótsze: wschodnia i zachodnia zostały wykończone tynkiem. Na tych ścianach wykonana została podkonstrukcja w celu pokrycia ścian pnączami i bluszczem.

instalacje.

W budynku zaprojektowano ogrzewanie płaszczyznowe z zastosowaniem kabli grzejnych umieszczonych w warstwie posadzki. Każde pomieszczenie zostało podzielone na osobną strefą grzewczą. Źródłem mocy dla ogrzewania elektrycznego jest instalacja fotowoltaiczna o łącznej mocy max. 9kWp zamontowana na dachu budynku. Budynek wyposażono w wentylację mechaniczną nawiewno-wywiewną z odzyskiem ciepła za pomocą wymiennika przeciwprądowego. Dla pomieszczeń mieszkalnych oraz salonu zaprojektowano urządzenia klimatyzacyjne, umieszczone w przestrzeni poddasza nieużytkowego, które w okresie letnim będą odbierać zyski ciepła. Urządzenia dodatkowo pełnią funkcję powietrznej pompy ciepła przeznaczonej na dogrzewanie pomieszczeń. Ciepła woda użytkowa jest podgrzewana w powietrznej pompie ciepła umieszczonej na poddaszu nieużytkowym lub za pomocą paneli słonecznych zamontowanych na dachu. Na działce zlokalizowano podziemny zbiornik retencjonujący wodę opadową wykorzystywaną do podlewania ogrodu.